PRIVATE RESIDENCES
AREA 500 m²
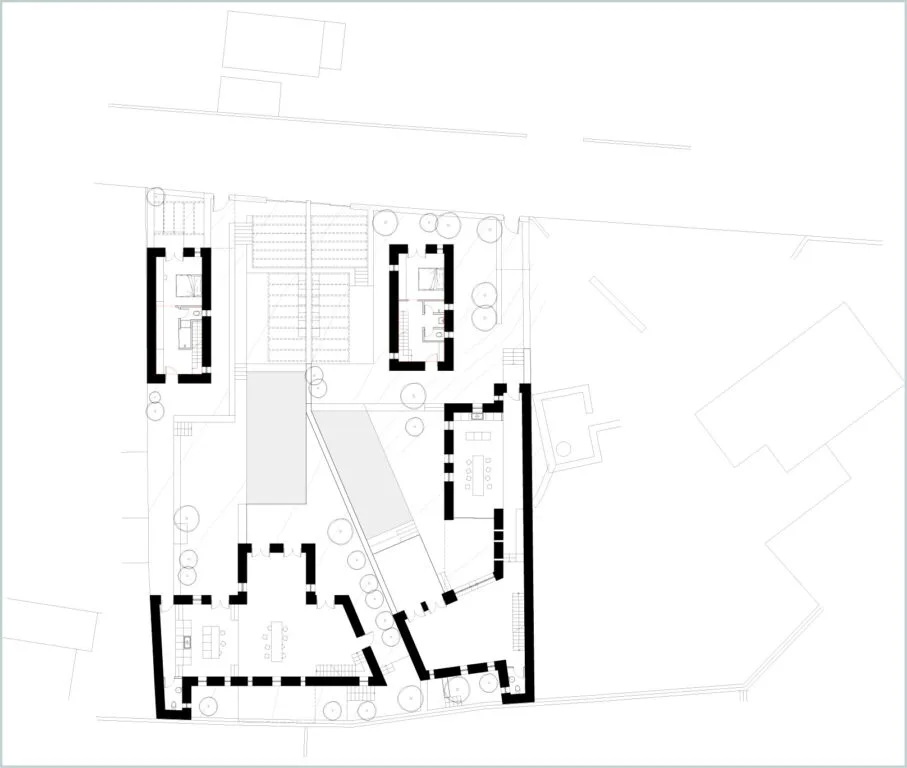
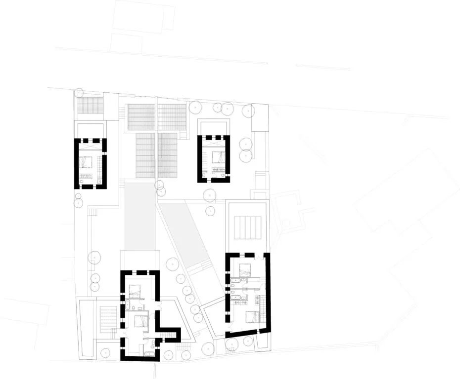
This study focused on designing two independent residential complexes, each with a guesthouse and a swimming pool. The plot is located in the Aspro Chorio settlement in Paros, close to the well-known beach ‘Lolantonis’.
Given the plot’s limited size (1000 m²) and the required building facilities, careful and efficient spatial planning was essential.
This study aimed to preserve key archetypal features of Cycladic architecture, including internal courtyards, semi-outdoor sheltered spaces, and varied stone compositions.
Where permitted, the buildings were positioned along the plot’s perimeter, creating internal spaces and courtyards.
The alternating volumes in size and shape ensure unobstructed views of the sea and nearby islets from all areas of the residences.
The ground floor levels accommodate the living areas, while the private spaces, including bedrooms, are located on the upper floors. Careful attention was given to avoiding repetitive designs and oversimplifications, resulting in a composition rich in diverse architectural elements.














