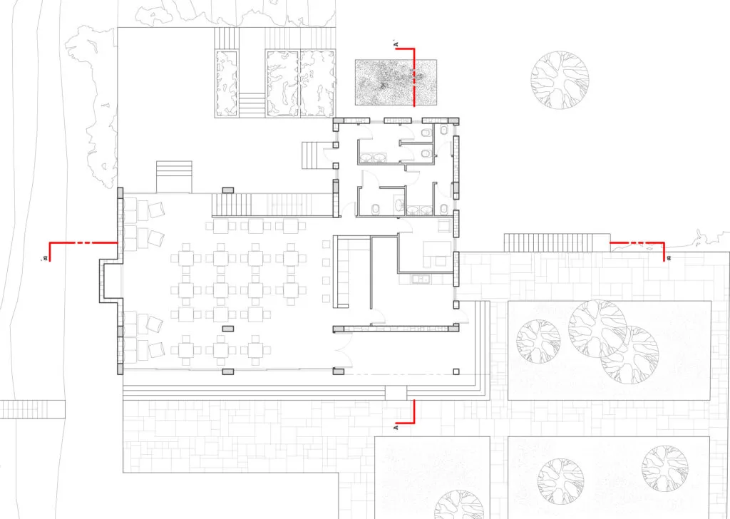
The project regards/concerns the construction of a space up to 215m² for the use of coffee – bar – restaurant and playroom for children. The natural slope/incline of the land creates a visible underground space, with access to the backyard, which will serve as/be turned to the playground, while the main venue will be on the level above with access from the main road. The main venue is lit by large glass surfaces and has direct view to the mountains/mountain scenery. The glass surfaces alternate with walls made of local stones, a characteristic of old residencies of the region.











